Print WindowSearch SiteHome Page
Dodge Xplorer Xcursion BrochureClass C 28' Ford F550 Xplorer Xcursion

Highly popular and requested mid-sized custom built Xcursion on a Ford F-550 5.4L 3-valve Triton™ V8 or optional 6.8L 3-valve Triton V10 with the TorqShift™ 5-speed automatic transmission. Other options include a 6.0L Power Stroke® V8 Turbo Diesel with TorqShift™ 5-speed automatic transmission with 19-gallon (72-liter) mid-ship or Dual, DRW diesel fuel tanks. This Xcursion is probably our most sought after model. Please click on brochure photo on the right to download our PDF brochure. Also, please CLICK HERE for specifications and updated options which are now very extensive based on requests.

An option we provide for this vehicle is the Espar Airtronics Heaters Models 2 and 4 which operate on diesel fuel and are manufactured in 12 or 24 Volt models. Heat outputs range from 2,900 BTU to 13,600 BTU. Applications range from Bunk heat and Cabin heat to Cargo Heat. These air systems are compact with all heat creation and fan distribution. The heaters have from two to four heat levels and cycle between these levels according to the temperature desired.
Espar's Hydronic 4 and D5 Coolant Heaters offer low fuel and power consumption providing affordable heating solutions for small trucks, mini-vans, sprinters and and other small utility vehicles. Its' compact size enables a simple installation and are available in 12 and 24 volt versions. Automatic heat regulation through 2 heat levels with outputs ranging from 8,200 BTU to 17,100 BTU. Diesel (D) and Gasoline (B) versions are available.
Another option is the12-volt Wallas Flush-Mounted Stove. The product allows us to optimize space. It has a separately installed oven and independent operating switches that can be placed as desired, e.g. out of reach of children. All ceramic stoves are equipped with stepless power adjustment. Once switched on, the cooking properties and heat are on a par with a home stove. The fuel for these diesel oil-operated devices can be taken from the motorhomes’s main tank. CLICK HERE for specs.
Our RV specific Jenn-Air Electric Cooktops have "HiLight" radiant elements that are among the best in the world. Their advanced design ensures the most rapid cooktop heat-up, from 0 to 100% in just 3 seconds. It also assures even heat distribution and quick results. The sleek, contemporary, glass cooktop looks good on any counter surface, makes cleaning easy, and offers a smooth transition from countertop to cooktop. Available in 120v or 240v with 8" and 6.5" burners.
Powered by a diesel engine, the Kubota Generator measures 28" L, 15.5" W, and 15" H, weighing 160 lbs. It has sufficient output to power a 16,000 btu air conditioner, refrigerator, and battery charger. An optional fiberglass enclosure is available to further quiet the generator to the reduced decibel level of 60 to 70 dBA.
The Gasoline powered Onan CMM 5500 operates at 120 or 240-volt. Operate up to 2 air conditioners, flush-mount stove top, instant hot water without tank and more. The advanced digital control provides extensive diagnostic capabilities by constantly monitoring the genset's operation and alerting the user to potential problems. Digital regulation allows voltage stability as loads change. 67db noise level with the sound-attenuated housing. CLICK HERE to review specifications.
The Diesel Onan Commercial Quiet Diesel 5500 operates at 120 or 240-volt. Operate up to 2 air conditioners, flush-mount stove top, instant hot water without tank and more. The Onan QD5500 is built to deliver quiet, reliable power for SUTs, fifth-wheels and Type A and Type C RVs. The Integral USDA Forest Service-approved spark-arrestor muffler and low vibration levels. 68db noise level with the sound-attenuated housing. CLICK HERE to review specifications.
Click on photos to see larger image. If photo's fail to load, READ THIS!

1 Driver's Side

2 Passenger's Side

3 Side View

4 Rear View

5 Front View

6 Back View

7 Front View

8 Front View

9 Customer's Rig

10 Inside View

11 Inside View

12 Show Front

13 Show Drivers

14 Show Entry

15 Interior

16 Interior

17 Interior

18 Interior

19 Interior

20 Interior

21 Interior

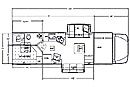
Floorplan 1

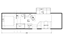
Floorplan 2

Floorplan 3

Floorplan 4

Floorplan 5

Floorplan 6

Floorplan 7

Floorplan 8

Floorplan 9

Floorplan 10

Floorplan 11

Floorplan 12

Floorplan 13

Floorplan 14

Floorplan 15

Floorplan 16

Floorplan 17

Floorplan 18

Floorplan 19

Floorplan 20

Floorplan 21

Floorplan 22

Floorplan 23

Floorplan 24

Floorplan 25

Floorplan 26

Floorplan 27

Floorplan 28

Floorplan 29

Floorplan 30

Floorplan 31

Floorplan 32

Floorplan 33

3 3D Interior Sofabed

2 3D Interior Reverse

3 3D Interior Sofabed

4 3D Interior Rear 1

5 3D Interior Rear 2

6 3D Interior Rear 3

GM3500 3D 1

GM3500 3D 2

GM3500 3D Camo 1

GM3500 3D Camo 2
Copyright © 2005- Xplorer Motor Home   |   Terms   |   Privacy   |   Website Hosted & Created By Artios Media